MilanoKramer

Descrizione

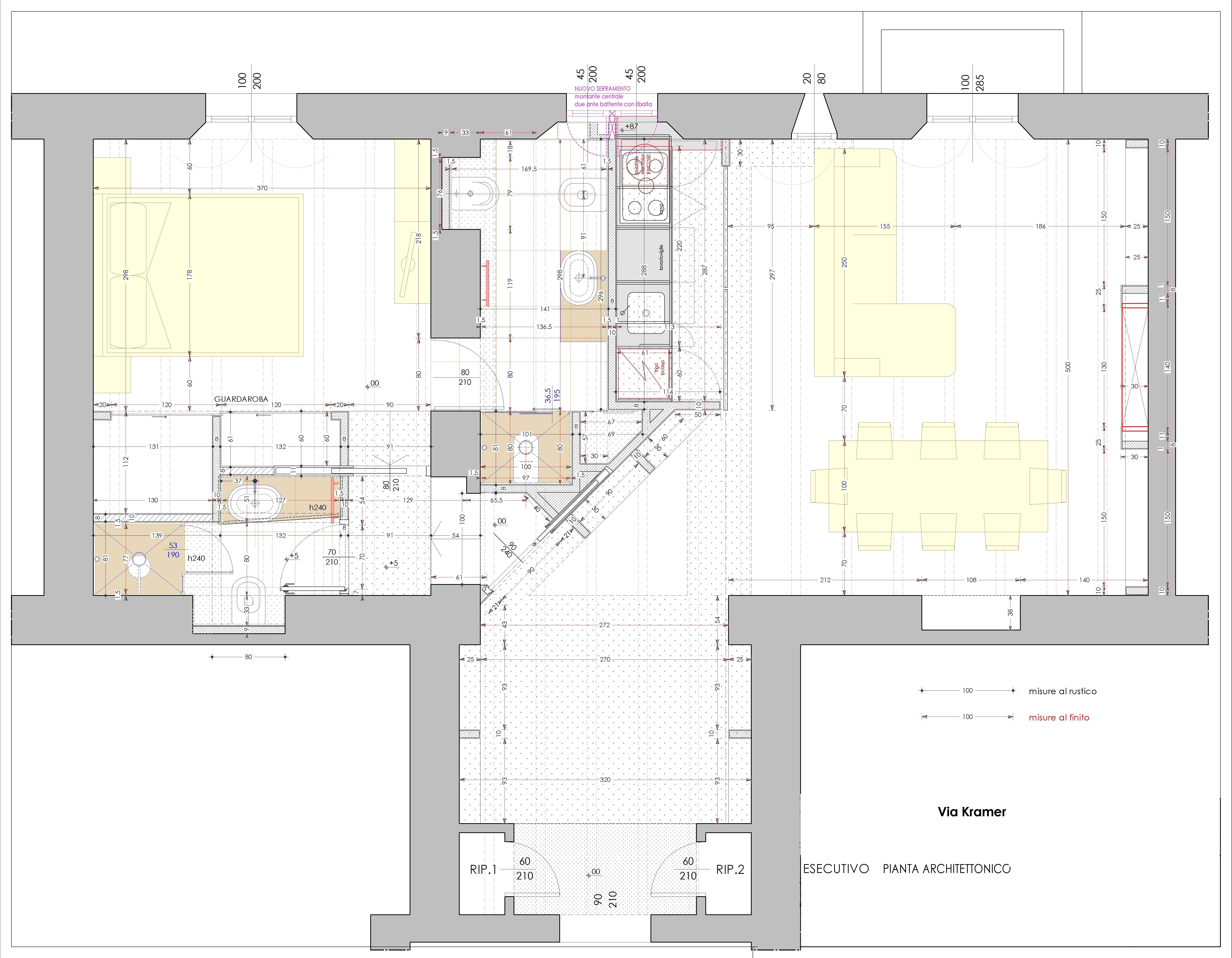
Riqualificazione funzionale e impiantistica di appartamento al 2° piano in palazzina anni ‘20

  • Superficie: 90 mq
  • Anno: 2016
  • Incarico: Progetto architettonico, comunale, esecutivo, interior design, contabilità lavori, Direzione Lavori
  • Stato progetto: Eseguito